
手術室層流送風天花
手術室層流送風天花是醫療醫院必不可少的設備,手術室層流送風天花裝置的重要,送風天花認為從手術特點與環境控制要求來說,手術室送風天花性能對手術區域控制作用比凈化空調系統及其控制更為重要。而我國研發的阻漏層送風天花突破了傳統理論和產品模式,使送風天花的綜合性能有了很大提高。實現了對手術區域的經濟、有效控制,大大降低了手術部位感染風險。
手術室層流送風天花又叫手術室潔凈送風天花、阻漏層流天花、層流送風天花;層流送風天花分為三個級別:Ⅰ級手術室,Ⅱ級手術室,Ⅲ級手術室;層流送風天花是現代醫院手術室必用的一種凈化裝置,我司生產的層流送風天花裝置是根據國內外領先的阻漏層技術,依托手術室層流送風天花以及零壓密封兩項制造出來的新一代層流層流送風天花裝置,使用本設備可合理分布潔凈室的氣流,有效保證室內的潔凈度(送風面為100級)。可廣泛應用于醫院潔凈手術室、潔凈病房、潔凈動物房等項目。
手術室層流送風天花產品特點:
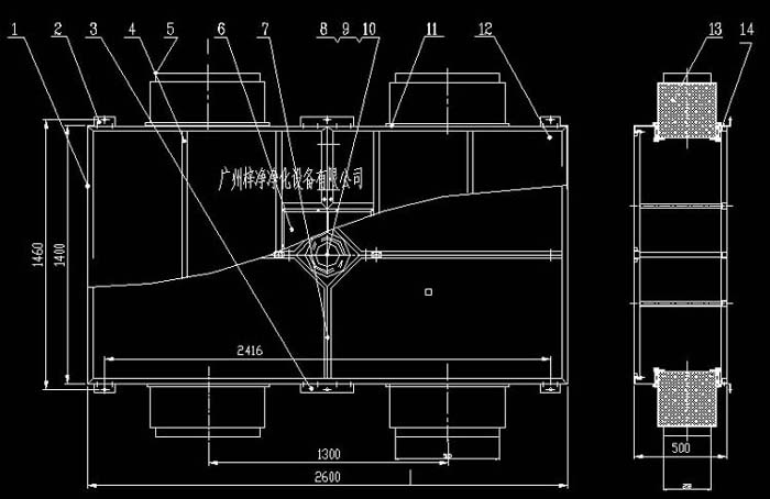
A、層流送風天花是在普通層流送風天花的基礎上研發出來層流天花系統。具有更好的層流及照明效果,更適合潔凈手術層流效果。有垂直送風及側面模式,鋁合金型材邊框制作,箱體采用1.2mm厚白色啞光PU噴塑電解鋼板。
B、箱體內壁四角及鋁合金邊框可以根據客戶需要加工成小于R80mm圓弧過渡,杜絕死角,不易滋生細菌。箱體中可根據需要設置氣密性凈化燈帶,即有層流效果,又可照明;與內嵌入環島整體式凈化燈帶相配合,使整個手術室光照度均勻,解決了老款安裝在大型手術室中,光照度不均勻的不利因素。
C、阻尼層均流,采用鋁合金扣壓式裝配,不得使用螺釘裝配,以便于更換及維護。中間帶中速氣流補償裝置采用2.0mm厚的拉絲防銹鋁板制作,完全杜絕以前層流天花因為無影燈阻撓而中心位置氣流減弱而影響層流效果;進口阻尼層流微孔均流送風。
手術室層流送風天花可選配件:
1、A型箱體為冷軋鋼板靜電噴塑處理,冷軋鋼板靜電噴塑做圍護及進風過濾框,含雙層DPP均流網及中速氣流補償裝置。
2、B型外箱體采用冷板噴塑,內部SUS30不銹鋼制作,中間夾保溫板。抗腐蝕、耐酸堿、保溫效果好,視覺更美觀;強度高,同時,保留雙層DPP均流網及中速氣流補償裝置。
手術室層流送風天花技術詳細參數:
型號/參 數 | I級手術室 | Ⅱ級手術室 | Ⅲ、Ⅳ級手術室 |
過濾效率 | ㄒ99.99%(0.3um) | ||
出風風速m/s | 0.45 | 0.3 | 0.23 |
送風面尺寸mm | 2600*2400 | 2600*1800 | 2600*1400 |
外型尺寸mm | 2680*2480*350 | 2680*1880*350 | 2680*1480*350 |
法蘭尺寸mm | 1000*200 4個 | 500*200 4個 | 320*200 4個 |
高效過濾箱規格數量 | 1270*666*610 2只 | 1270*666*610 1只 | 1270*666*610 1只 |
高效過濾器規格數量 | 610*610*295 *4只 | 610*610*295 *2只 | 610*610*295 *1只 |
法蘭尺寸mm | 800*500 | 800*500 | 500*320 |
使用場合 | Ⅰ級特別潔凈手術室 | Ⅱ級標準潔凈手術室 | Ⅱ級一般潔凈手術室 |
層流送風天花外箱體結構特點:
常用層流送風天花材質說明:
I級層流層流送風天花 | 2800*2600*500 | 噴塑鋼板,鋁合金框架 | 選配阻尼層均流、不銹鋼孔板均流、氣流補償裝置、凈化燈帶 |
2600*2400*500 | 噴塑鋼板,鋁合金框架 | ||
Ⅱ級層流 層流送風天花 | 2600*2000*500 | 噴塑鋼板,鋁合金框架 | |
2600*1800*500 | 噴塑鋼板,鋁合金框架 | ||
Ⅲ、Ⅳ級層 流層流送風天花 | 2600*1600*500 | 噴塑鋼板,鋁合金框架 | |
2600*1400*500 | 噴塑鋼板,鋁合金框架 |
手術室層流送風天花現場效果圖:
層流送風天花制作方法:
層流送風天花是現代醫院手術室必用的一種凈化裝置。它的裝置是根據國內外領先的阻漏層技術,依托手術室潔凈送風天花裝置,使用本設備可合理分布潔凈室內的氣流,有效保證室內的潔凈度,可廣泛應用于醫院潔凈手術室、潔凈病房、潔凈動物房等項目;
比如用于手術室時,層流送風天花采用空氣潔凈技術對微生物污染采取程度不同的控制,達到控制空間環境中空氣潔凈度適于各類手術之要求,并提供適宜的溫、濕度,創造一個潔凈舒適的手術空間環境。
隨著現代醫學科學技術的飛速發展,外科技術對手術室的潔凈條件的要求也越來越高。但如何有效管理,使層流手術室的空氣菌落數符合衛生部頒發的空氣環境衛生學標準,又符合潔凈手術室等級標準,并使之減少到最低限度,是目前潔凈手術室管理中值得探討的一個新的課題。
層流送風天花制作其箱體分為兩大塊,所以即使拆分后體積依然過大,不便于搬運,而且兩大塊之間的密封不夠好,影響潔凈效果;另外,傳統的層流送風天花的箱體表面不平整,有死角不便于清洗,而且紗網框架的面積大導致出風面積減小,降低了出風量。
- 上一個產品:超凈工作臺
- 下一個產品: 全自動風淋室|全自動感應風淋門