
手術室層流送風天花阻尼網|網孔板|均流網|均流膜
手術室層流送風天花阻尼網|網孔板|均流網|均流膜:手術室送風天花阻尼網又稱為手術室送風天花網孔板、手術室送風天花均流網、層流送風天花均流膜,主要分為四個部分組成:鋁合金框架包邊、300目雙層阻尼網、不銹鋼骨架、卡簧(均流網非廣州梓凈產品,更換時需要測量卡簧中心距、鋁合金外框需要測量邊長的端點到斜角位置距離)。
手術室送風天花制作要求選配:
1、A型箱體為冷軋鋼板靜電噴塑處理,冷軋鋼板靜電噴塑做圍護及進風過濾框,含雙層DPP均流網及中速氣流補償裝置。
2、B型外箱體采用SUS304不銹鋼制作。抗腐蝕、耐酸堿、視覺更美觀、強度高,同時,保留雙層DPP均流網及中速氣流補償裝置。
3、手術室送風天花阻尼層均流可選用鋁質網孔板、304不銹鋼網孔板、冷軋鋼板烤漆網孔板、雙層DPP均流網。
手術室送風天花特點:
1、送風形式:層流送風天花分高效過濾器滿布(平鋪)送風和高效過濾器側布(側鋪)送風兩種。
2、氣流狀態:送風天花下部氣流均勻,氣流滿布率≧95%,達到行業檢測的相關參數要求。
3、均流模式:多塊網孔板組合,出風均勻,靜電粉末噴涂,和墻頂面同色,表面效果好。
4、工廠制造,現場采用標準連接件拼接組裝,安裝方便、簡單,設備安裝質量有保障。
5、維護操作:國標規格過濾器,更換快捷、方便,易維護。
6、過濾器壓差密封技術:保證潔凈區內無泄漏。
7、過濾器滿布技術:壓差低,超長使用壽命。
8、穩定的產品質量,供貨周期短。
8、高分子阻尼層送風網面:低阻力,風速均勻。
9、均流度滿足最新規范要求:不均勻度小于15% 。
10、變級別手術室:擴大手術室使用范圍,提高手術室使用率;同時運行中節約能源 。
11、燈柱蓋板小于250mm×250mm——符合最新版規范要求。
層流送風天花主要用于醫院潔凈手術室、潔凈病房、潔凈動物房等項目,這些地方都是對潔凈要求比較高的。例如手術室,手術室是醫院中最長的開放性醫療過程,手術過程中將患者最好的屏障——表皮或粘膜打開,使得機體的內部直接暴露在外,不同途徑帶入的病菌有可能輕而易舉地進入機體內部,極易引起感染。因此術后感染一直是醫院一種普遍的、最難以提防的、可能誘發嚴重后果的院內感染,百級層流潔凈手術室是目前最為理想的潔凈措施,層流送風天花是潔凈手術室、潔凈病房的凈化送風末端,兼有高效過濾,均流及氣流補償作用,運用先進的空氣潔凈技術應用到手術室,對手術室的空氣進行除菌、溫濕度調節、新風調節等系列處理,使得手術室保持在潔凈、溫濕度適宜的狀態。
層流送風天花靜壓箱采用電解鍍鋅鋼板表面噴漆處理或不銹鋼加工,四邊采用硅膠密封,形成一個氣密箱體;采用“梓凈”牌HEPA過濾器99.999%@0.3μm過濾器,安裝在靜壓箱內,且能從天花下面進行維修;送風天花表面采用優質紗網框,它是一種特殊系數的阻尼網層,使空氣垂直地送到手術室主流區。
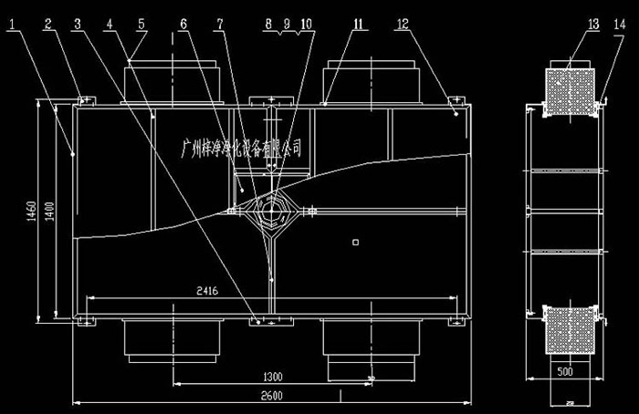
手術室層流送風天花高效過濾器有組合式高效過濾器、無隔板高效過濾器、有隔板高效過濾器三種,可根據需要選配,“梓凈”牌Ⅲ級手術室送風天花W2600*D1400*H500mm一般標配4個側鋪高效過濾器(規格610*305*292mm)。
手術室層流送風天花工作原理:送風天花由高效空氣消毒過濾系統、風機動力系統、消音降噪系統、操作控制系統等組成。工作時風機吸入環境空氣,在經過空氣凈化消毒系統過濾成為潔凈無菌空氣,再以層流的方式將潔凈空氣送到罩內病床區域,同時使罩內保持正壓,以阻止外部空間的塵埃粒子及微生物進入罩內。
層流送風天花分類為哪三個級別?
送風天花一般分類為百級,千級,萬級這三個級別。
百級送風天花:Ⅰ型(2800*2600)
千級送風天花:Ⅱ型(1800*2600)
萬級送風天花:Ⅲ型(1400*2600)
手術室層流送風天花的重要性:為什么要強調送風天花的性能及其對術后感染控制的重要性?這要從手術的特點說起,手術環境控制關鍵在于手術區,而手術區控制關鍵在于手術切口,因此需要高無菌程度控制的只是一個局部區域而非全室。因此,如何從技術措施保障手術環境控制?傳統的思路就是區域控制的概念,這也是各國醫院相關標準實施的控制。
隨著現代醫學科學技術的飛速發展,外科技術對手術室的潔凈條件的要求也越來越高。
百級層流手術室是目前比較理想的。但如何有效管理,使層流手術室的空氣菌落數符合衛生部頒發的空氣環境衛生學標準,又符合潔凈手術室等級標準,并使之減少到最低限度,國內檢索文獻資料較少,是目前潔凈手術室管理中值得探討的一個新的課題。層流送風天花是采用空氣潔凈技術對微生物污染采取程度不同的控制,達到控制空間環境中空氣潔凈度適于各類手術之要求;并提供適宜的溫、濕度,創造一個潔凈舒適的手術空間環境。
手術室送風天花阻尼網可根據用戶需求定制!
- 上一個產品:超凈工作臺
- 下一個產品: 負壓稱量房|負壓稱量間